Caractéristiques
-
Surface 277 m²
-
Surface habitable 277 m²
-
Surface terrain 840 m²
-
Surface sejour 65 m²
-
Nombre de pièces 12
-
Nombre de chambres 7
-
Nombre de salles de bain 1
-
Nombre de salles d'eau 2
-
Nombre de toilettes 4
-
Nombre de parkings couverts 2
-
Piscine Oui
-
Nombre d' étages 3
-
Nombre de niveaux 3
Description
Mandat 20923
Maison de caractère de 280 m² à rénover, 170 m² de dépendances, garage couvert et piscine sur une parcelle d'environ 840 m² au coeur du village de Pusignan.
Nous sommes au 6 rue de l'Egalité.
Bénéficiant de 2 accès sur rue, historiquement un accès personnel et un accès professionnel, la vie de cette grande bâtisse est à réinventer. Son potentiel est réel.
Elle est aujourd'hui équipée de 90 m² de pièces de vie, 7 chambres, 3 salles de bains/salle d'eau et 3 vastes espaces bureau.
A l'arrière de la maison, la piscine, les dépendances (170 m²) et l'accès au garage couvert.
Aucun vis à vis, seulement le calme et la végétation.
Toitures et façades récentes. Chaudière gaz Weishaupt. (chauffage au sol au RDC).
Contact et visites, Denis DUPONT : 06 83 13 59 80
Nous sommes au 6 rue de l'Egalité.
Bénéficiant de 2 accès sur rue, historiquement un accès personnel et un accès professionnel, la vie de cette grande bâtisse est à réinventer. Son potentiel est réel.
Elle est aujourd'hui équipée de 90 m² de pièces de vie, 7 chambres, 3 salles de bains/salle d'eau et 3 vastes espaces bureau.
A l'arrière de la maison, la piscine, les dépendances (170 m²) et l'accès au garage couvert.
Aucun vis à vis, seulement le calme et la végétation.
Toitures et façades récentes. Chaudière gaz Weishaupt. (chauffage au sol au RDC).
Contact et visites, Denis DUPONT : 06 83 13 59 80
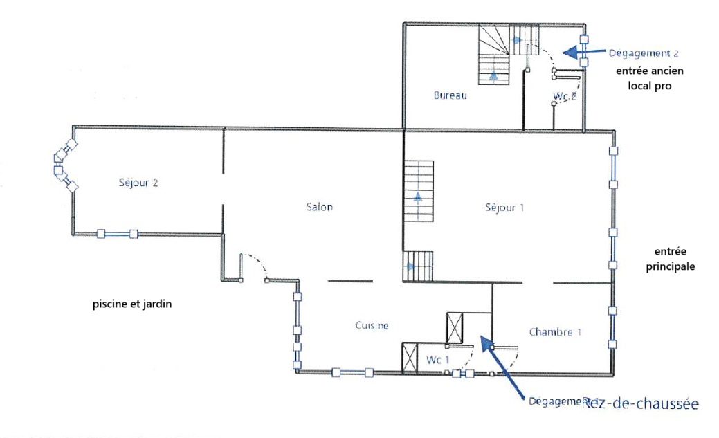
Détail des pièces
- Salon: 30 m²
- Séjour: 34 m²
- Cuisine: 17 m²
- Chambre 1: 11 m²
- Chambre 2: 20 m²
- Chambre 3: 12 m²
- Chambre 4: 11.5 m²
- Chambre 5: 20 m²
- Chambre 6: 12.3 m²
- Chambre 7: 22 m²
- Annexe 1: 15 m²
- Annexe 2: 8 m²
- Annexe 3: 87 m²
- Annexe 4: 30 m²
- Annexe 5: 10 m²
- Local technique: 8 m²
Bilan sur les performances énergétiques du bien
D
Date de réalisation : 14/07/2025Classe énergétique
D
227 kWh/m².an
Classe climatique
D
46 kg CO2/m².an
Estimation des coûts énergétiques annuels du logement
Entre 5530€ et 6540€ par an
Prix moyens de l'énergie indexés sur l'année 0 (abonnements inclus)
Prix moyens de l'énergie indexés sur l'année 0 (abonnements inclus)
Les informations sur les risques auxquels ce bien est exposé sont disponibles sur le site Géorisques : www.georisques.gouv.fr
Informations financières
Taxe foncière : 2 960 €
Biens similaires aux alentours

Maison - 5 pièces - 105 m²
38460 Crémieu 350 000 €
Exclusif
Sous-compromis
Maison - 5 pièces - 135 m²
69190 Saint-Fons 260 000 €
Exclusif
Sous-offre
Maison - 4 pièces - 90 m²
69500 Bron 375 000 €
Exclusif
Sous-offre
Maison - 5 pièces - 120 m²
69270 Fontaines-Saint-Martin 299 000 €
Exclusif
Sous-compromis
Maison - 4 pièces - 80 m²
69200 Vénissieux 280 000 €Ce bien vous intéresse ?
Laissez un message
Votre contact
Dupont Denis
Lyon 3 Préfecture