Caractéristiques
-
Surface 212 m²
-
Nombre de parkings 3
-
Nombre de parkings couverts 1
-
Accessible pmr Oui
-
Annee construction 2019
Description
Mandat 20821
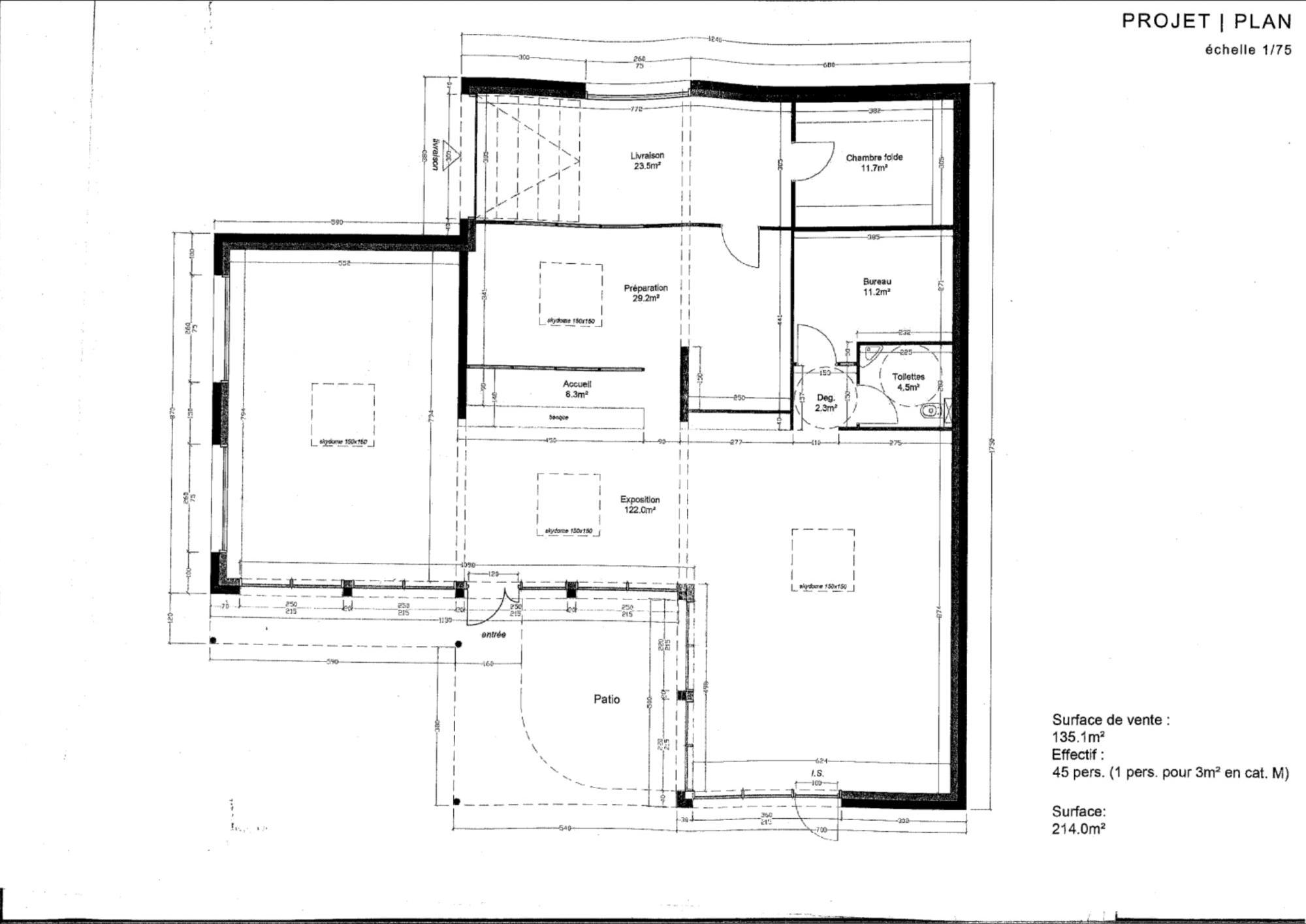
Local commercial de 212m2 sur 605m2 de terrain construit en 2019 sur la zone commerciale de Chaspuzac (43320).
Le bâtiment, en très bon état, se compose ainsi :
• 128,3 de surface commerciale
• 64,4 de surface de préparation
• 13,5 de de bureau
• 4,5 WC indépendant
Le site bénéficie d'une forte visibilité et d'un parking adjacent.
Localisation
Situé sur la zone commerciale de Chaspuzac ( 15 minutes du Puy en Velay ) , le site est facile d’accès.
Adjacent à un axe routier menant directement à Clermont Ferrand en 1h15 et à 500 m de l’aérodrome , il offre un panel de possibilités.
Les + :
- Très visible - axe routier
- Proximité du Puy en Velay
- Facile d'accès - stationnement
- État générale
- Grandes vitrines
- Très bien isolé
- Proche de tout commerce
Prix de vente frais d'agence inclus : 275 000 euros
Pour toutes informations complémentaires ou visites,
Contactez Stéphane GUINANT au 0612944368
Mail : s.guinant@pietrapolis.fr
Le bâtiment, en très bon état, se compose ainsi :
• 128,3 de surface commerciale
• 64,4 de surface de préparation
• 13,5 de de bureau
• 4,5 WC indépendant
Le site bénéficie d'une forte visibilité et d'un parking adjacent.
Localisation
Situé sur la zone commerciale de Chaspuzac ( 15 minutes du Puy en Velay ) , le site est facile d’accès.
Adjacent à un axe routier menant directement à Clermont Ferrand en 1h15 et à 500 m de l’aérodrome , il offre un panel de possibilités.
Les + :
- Très visible - axe routier
- Proximité du Puy en Velay
- Facile d'accès - stationnement
- État générale
- Grandes vitrines
- Très bien isolé
- Proche de tout commerce
Prix de vente frais d'agence inclus : 275 000 euros
Pour toutes informations complémentaires ou visites,
Contactez Stéphane GUINANT au 0612944368
Mail : s.guinant@pietrapolis.fr
Localisation et points d'intérêts
Bilan sur les performances énergétiques du bien
C
Date de réalisation : 02/04/2025Classe énergétique
C
110 kWh/m².an
Classe climatique
A
3 kg CO2/m².an
Estimation des coûts énergétiques annuels du logement
Entre 2067€ et 2067€ par an
Prix moyens de l'énergie indexés sur l'année 0 (abonnements inclus)
Prix moyens de l'énergie indexés sur l'année 0 (abonnements inclus)
Informations financières
Taxe foncière : 777 €
Ce bien vous intéresse ?
Laissez un message
Votre contact
GUINANT Stéphane
Lyon 3 Préfecture
