Caractéristiques
-
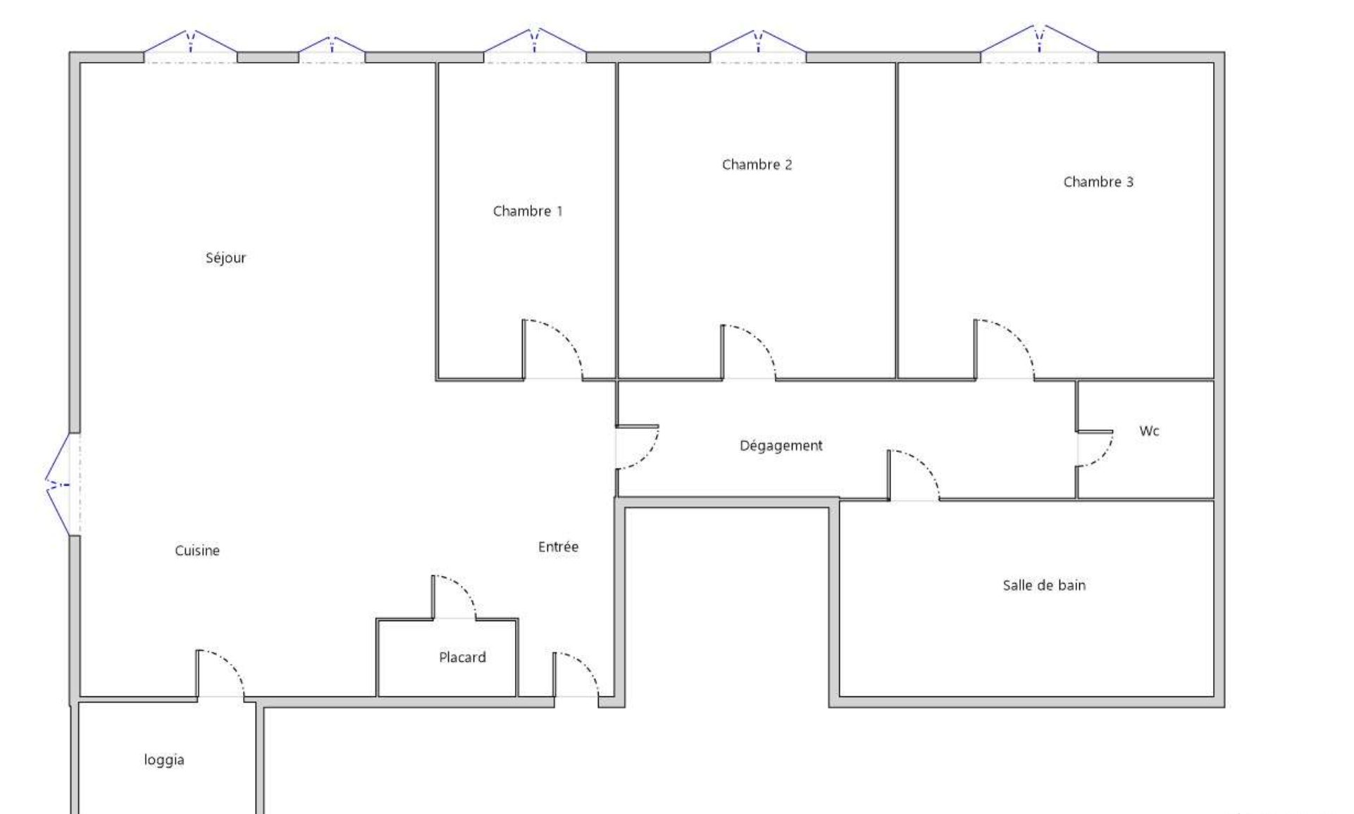
Surface 69.09 m²
-
Surface carrez 69.09 m²
-
Nombre de pièces 4
-
Nombre de chambres 3
-
Nombre de salles de bain 1
-
Nombre de toilettes 1
-
Etage 3
-
Annee construction 1968
-
Ascenseur Oui
Description
Mandat 20992
Situé au 3ᵉ étage d’une résidence sécurisée avec ascenseur, cet appartement T4 de 69 m² bénéficie d’une belle luminosité et d’une vue dégagée sans vis-à-vis, dans le secteur très recherché des Arcades, rue du Grand Revoyet.
Il se compose d’un salon de 25 m² avec cuisine ouverte, de trois chambres, d’une salle de bains, de WC séparés, et profite de menuiseries en double vitrage. Le chauffage collectif au sol est alimenté au gaz.
La résidence, fermée et parfaitement entretenue, dispose d’une gardienne, de nombreux espaces verts ainsi qu’un vaste parc arboré. Celui-ci comprend des vestiges historiques tels que les arcades d’un ancien couvent, un terrain de sport, un espace pour jouer au ballon, des bacs de compost, et même un arbre centenaire remarquable.
Le tout dans un environnement calme et privilégié.
Des places de stationnement sont disponibles dans l’enceinte de la résidence. Proximité immédiate du centre, des commerces, des écoles et des lignes de bus.Copropriété de 250 lots. Charges par mois de 300 €. Pas de procédure en cours.
Honoraires charge vendeur.
DPE : D
Pour plus d'informations ou pour organiser une visite, contactez Sébastien VERNIERE
006 64 85 51 202 – s.verniere@pietrapolis.fr – EI – agent commercial – RSAC 914 067 608
Besoin de vendre votre bien ? Estimation GRATUITE et SANS ENGAGEMENT sur tout le secteur lyonnais.
Agence immobilière enregistrée RCP de Lyon sous le N 424 902 2- N° Carte professionnelle N° 6901 2016 000 003 981.
Les informations sur les risques auxquels ce bien est exposé sont disponibles sur le site Géorisques. www.georisques.gouv.fr
Il se compose d’un salon de 25 m² avec cuisine ouverte, de trois chambres, d’une salle de bains, de WC séparés, et profite de menuiseries en double vitrage. Le chauffage collectif au sol est alimenté au gaz.
La résidence, fermée et parfaitement entretenue, dispose d’une gardienne, de nombreux espaces verts ainsi qu’un vaste parc arboré. Celui-ci comprend des vestiges historiques tels que les arcades d’un ancien couvent, un terrain de sport, un espace pour jouer au ballon, des bacs de compost, et même un arbre centenaire remarquable.
Le tout dans un environnement calme et privilégié.
Des places de stationnement sont disponibles dans l’enceinte de la résidence. Proximité immédiate du centre, des commerces, des écoles et des lignes de bus.Copropriété de 250 lots. Charges par mois de 300 €. Pas de procédure en cours.
Honoraires charge vendeur.
DPE : D
Pour plus d'informations ou pour organiser une visite, contactez Sébastien VERNIERE
006 64 85 51 202 – s.verniere@pietrapolis.fr – EI – agent commercial – RSAC 914 067 608
Besoin de vendre votre bien ? Estimation GRATUITE et SANS ENGAGEMENT sur tout le secteur lyonnais.
Agence immobilière enregistrée RCP de Lyon sous le N 424 902 2- N° Carte professionnelle N° 6901 2016 000 003 981.
Les informations sur les risques auxquels ce bien est exposé sont disponibles sur le site Géorisques. www.georisques.gouv.fr
Bilan sur les performances énergétiques du bien
D
Date de réalisation : 20/07/2025Classe énergétique
D
209 kWh/m².an
Classe climatique
D
45 kg CO2/m².an
Estimation des coûts énergétiques annuels du logement
Entre 1200€ et 1700€ par an
Prix moyens de l'énergie indexés sur l'année 0 (abonnements inclus)
Prix moyens de l'énergie indexés sur l'année 0 (abonnements inclus)
Informations financières
Taxe foncière : 967 €
Charges mensuelles : 300 €
En copropriété
Nombre de lots : 250
Pas de procédures en cours
Biens similaires aux alentours

Exclusif
Appartement - 3 pièces - 80 m²
69230 Saint-Genis-Laval 199 000 €
Exclusif
Appartement - 3 pièces - 64 m²
69200 Vénissieux 160 000 €
Appartement - 3 pièces - 74 m²
69230 Saint-Genis-Laval 189 000 €
Exclusif
Appartement - 3 pièces - 61 m²
69120 Vaulx-en-Velin 200 000 €
Appartement - 3 pièces - 60 m²
69009 Lyon 189 000 €
Exclusif
Sous-offre
Appartement - 4 pièces - 79 m²
69250 Neuville-sur-Saône 185 000 €
Exclusif
Appartement - 3 pièces - 64 m²
69003 Lyon 225 000 €
Exclusif
Sous-offre
Appartement - 3 pièces - 55 m²
69190 Saint-Fons 185 000 €
Exclusif
Appartement - 3 pièces - 59 m²
69410 Champagne-au-Mont-d'Or 190 000 €Ce bien vous intéresse ?
Laissez un message
Votre contact
VERNIERE Sébastien
Lyon 3 Préfecture