Caractéristiques
-
Surface 39.23 m²
-
Surface carrez 39.23 m²
-
Surface sejour 18 m²
-
Surface balcon 7 m²
-
Nombre de pièces 2
-
Nombre de chambres 1
-
Nombre de salles d'eau 1
-
Nombre de toilettes 1
-
Nombre de parkings couverts 1
-
Chauffage collectif Collectif
-
Etage 4
-
Annee construction 2012
-
Ascenseur Oui
Description
Mandat 20878
A vendre en exclusivité, un appartement de type 2 situé au dernier étage d'une copropriété récentesur la commune de Villeurbanne.
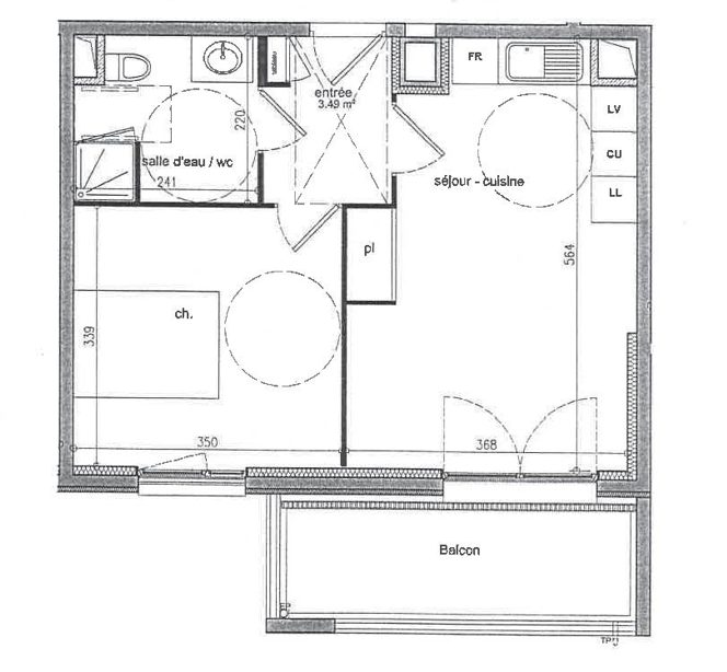
Il se compose d'une entrée, un pièce de vie avec cuisine, une chambre, une salle d'eau avec Wc.
En annexe une place de stationnement, un balcon
Très bon état, libre
Future ligne de Tramway avec un arrêt au bout de la rue, mise en service prévue pour 2026
Pour toutes demandes de renseignements ou visite, vous pouvez contacter, Audrey Pillot au 0679126570 (Agent commercial RSAC de Bourg-en-Bresse 523860989)
Il se compose d'une entrée, un pièce de vie avec cuisine, une chambre, une salle d'eau avec Wc.
En annexe une place de stationnement, un balcon
Très bon état, libre
Future ligne de Tramway avec un arrêt au bout de la rue, mise en service prévue pour 2026
Pour toutes demandes de renseignements ou visite, vous pouvez contacter, Audrey Pillot au 0679126570 (Agent commercial RSAC de Bourg-en-Bresse 523860989)
Détail des pièces
- PIECE DE VIE: 18.8 m²
- CHAMBRE : 11.79 m²
- ENTREE PLACARD: 3.47 m²
- SALLE D EAU : 5.17 m²
- BALCON 7m²: 0 m²
Bilan sur les performances énergétiques du bien
D
Date de réalisation : 20/04/2025Classe énergétique
D
182 kWh/m².an
Classe climatique
D
36 kg CO2/m².an
Estimation des coûts énergétiques annuels du logement
Entre 590€ et 840€ par an
Prix moyens de l'énergie indexés sur l'année 0 (abonnements inclus)
Prix moyens de l'énergie indexés sur l'année 0 (abonnements inclus)
Informations financières
Taxe foncière : 776 €
Charges mensuelles : 148 €
En copropriété
Nombre de lots : 115
Pas de procédures en cours
Biens similaires aux alentours

Exclusif
Appartement - 1 pièce - 32 m²
69650 Saint-Germain-au-Mont-d'Or 150 000 €
Exclusif
Appartement - 3 pièces - 64 m²
69200 Vénissieux 160 000 €
Appartement - 3 pièces - 74 m²
69230 Saint-Genis-Laval 189 000 €
Exclusif
Sous-offre
Appartement - 2 pièces - 60 m²
69005 Lyon 190 000 €
Appartement - 3 pièces - 60 m²
69009 Lyon 189 000 €
Exclusif
Sous-offre
Appartement - 1 pièce - 51 m²
69001 Lyon 185 000 €
Exclusif
Sous-offre
Appartement - 3 pièces - 55 m²
69190 Saint-Fons 185 000 €
Exclusif
Appartement - 2 pièces - 39 m²
69580 Sathonay-Camp 170 000 €
Appartement - 3 pièces - 62 m²
69190 Saint-Fons 149 500 €
Exclusif
Appartement - 3 pièces - 59 m²
69410 Champagne-au-Mont-d'Or 190 000 €Ce bien vous intéresse ?
Laissez un message
Votre contact
PILLOT Audrey
Lyon 3 Préfecture